위례신도시 지앤지프라자파크에비뉴
*** 우남역 상업지주변에 유일하게 호수공원을 접한 근생상가 ***
= 근생 7-1(1,2)BL =

위례신도시 지앤지프라자 파크에비뉴
새로운 강남의 탄생 43,000여세대의 위례신도시!!!
더 이상 설명이 필요 없는 프리미엄 상권을 추천합니다.
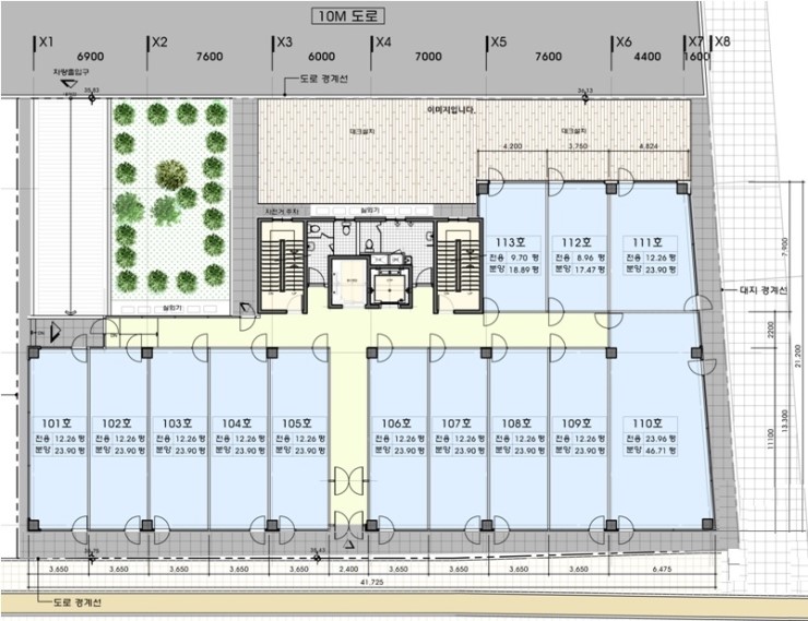
※ 건축개요
대지위치: 위례지구 근린생활시설 7-1-1,2
대지면적: 362.09평(1,197.00m2)
용 도: 제1,2종 근린생활시설
도 로: 전면27m 후면10m
건축면적: 215.60평(712.72m2)
연 면 적: 1,676.80평(5,543.13m2)
층 수: 지하2층 지상5층 주차시설: 법정28.35대 설치40대
승 강 기: 2대(17인 베드용 포함)

※ 2014년 현재 2,949세대 입주완료
※ 2015년 입주예정 4,330세대 입주예정
※ 2016년 입주예정 6,920세대 입주예정
※ 2017년 입주예정 28,000세대 입주예정
※ 8호선 전철 우남역(신설 2017년 개통예정) 중심상권과 트램 /중앙역
주거지역을 모두 아우르는 핵심 상권!!!
※ 수변공원 바로 앞에 위치하여 확 트인 전망과 최고의
광고 효과!!! => 스카이라운지 최적지
※ 위례신도시 학교현황
초등학교 10개교 중학교 5개교 고등학교 4개교
※ 반경 1,5km 20,000여 배후세대
초등학교 4개교 중학교 2개교 고등학교 2개교 =>병.의원,학원 최적지
※ 상업지 비율 : 1.5%
※ 환자용 A/V 설치 , 높은 층고
※ 자금관리 : 코리아신탁(주)의 안전성 보장!!!
※ 성공 신화의 창조 위례신도시에서 시작 하십시오.!!!
전화 주시면 성심 성의있게 설명해 드리겠습니다.
감사합니다.
문의 : 조한일 팀장 => 010 -8945-8897


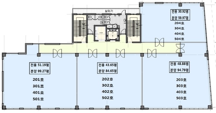
1층 권장업종 : 은행,커피전문점,프랜차이즈,약국,치킨호프,미용실,
죽전문점 ,김밥전문점,제과점,편의점,휴대폰대리점,부동산등
-> 호수공원을 접하며 분양평수 이상의 테라스 공간
2층 권장업종 : 은행,전문식당가(한식,중식,양식,일식),프랜차이즈등
3층 권장업종 : 병원(이비인후과,내과,소아과,피부 비뇨기과,정형외과,치과,
한의원, 안과, 성형외과 등)
4층 권장업종 : 학원(태권도학원,피아노학원,미술학원,보습학원,영어학원,
수학학원,사무실,전문학원등)
5층 권장업종 : 패밀리레스토랑,스크린골프,Jazz Bar,뷔페(buffet)등
문의 : 조 한일 팀장 => 010 - 8945 - 8897